Смарт 124 №520

Цена строительства от 6 949 000 ₽* * Стоимость не является окончательной
Заявка на консультацию
  • Общая площадь 124 м2
  • Длина 14.45 м
  • Ширина 13.2 м
  • Материал стен Каркас
  • Количество этажей 1
  • Подвал Нет
  • Мансарда без мансарды
  • Гараж Нет
  • Терраса Да
  • Проживание Круглогодичное
  • Количество комнат 4
  • Количество спален 3
  • Количество санузлов 2
  • Вид проекта дом
  • Застройщик Шестаков Дом
  • Архитектурный стиль Американский
  • Отделка фасада Обшивка деревом
  • Крыша Двускатная
  • Можно купить домокомплект Да
  • Модульный тип строения Нет
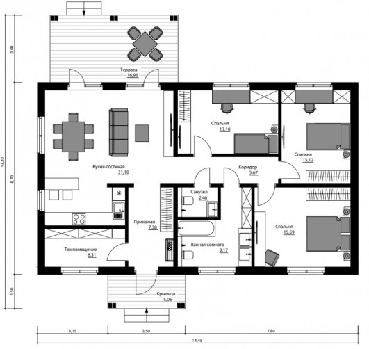
Планировки
Описание проекта

Это преднапиленный конструктор дома, который включает в себя прежде всего комплект для сборки деревянного каркаса, состоящий из нескольких элементов:

■ Сращенная строганная доска

■ Стойки

■ Обвязки

■ Ригели

■ Лаги

■ Балки

■ Стропила, прогоны и пр.

Большой и светлый каркасный дом площадью 124 м2, созданный для комфортной жизни. Вас встретит стильная прихожая, ведущая в уютную гостиную с панорамным освещением, где можно собраться за чашкой чая или принять гостей. Современная кухня, объединенная с гостиной, станет сердцем дома, где рождаются кулинарные шедевры и теплые воспоминания. В доме три уютные спальни, каждая из которых — это личное пространство для отдыха, два санузла подчеркивают практичность дома, а просторная терраса станет идеальным местом для утреннего кофе или вечерних посиделок на свежем воздухе. Для хранения и размещения инженерных предусмотрено техническое помещение.

Вас может заинтересовать
Вас может заинтересовать

Выбор местоположения

Задать вопрос / написать нам

E-mail: domgis@mail.ru

Мы свяжемся с Вами в течение дня.

Тех. поддержка
Предмет обращения:
Тукущая страница

Мы свяжемся с Вами в течение дня.

Уведомление
Предмет обращения:
Тукущая страница
Обратный звонок
Обратный звонок
Выберите ваш город
Пожаловаться

Объявление опубликовано.
Изменения сохранены

Период публикации - бессрочный, при условии подтверждения актуальности каждые 50 дней. Уведомления будут отправляться на Вашу электронную почту.

Выберите причину снятия с публикации

Снятые с публикации объявления не участвуют в поиске и недоступны для подробного просмотра.

Для повторной публикации нажмите «Вернуть в публикацию»